
1/5




£95K
1.24 acres
£95K
PH36
1.24 acres
1.24-Acre Development Land for Sale in Highland Scotland
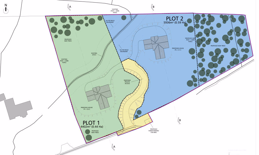
A rare opportunity has arisen to purchase two very attractive, generously sized plots of land, occupying prime elevated positions on the edge of the popular residential village of Strontian. Situated on the rugged Ardnamurchan Peninsula, and enjoying stunning views over the surrounding countryside,
1.24-Acre Development Land for Sale in Highland Scotland
1.24 acres
development
available
freehold
Description
A rare opportunity has arisen to purchase two very attractive, generously sized plots of land, occupying prime elevated positions on the edge of the popular residential village of Strontian. Situated on the rugged Ardnamurchan Peninsula, and enjoying stunning views over the surrounding countryside,
Contact Agent
MacPhee And Partners LLP, Fort William
Location
PH36