
1/7




+2
more
£180K
Size not specified
£180K
LAND Off North Holmes Road
Size not specified
Rural Property in LAND Off North Holmes Road for Sale - £180,000
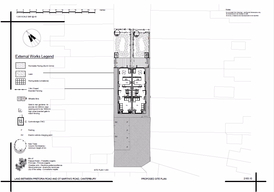
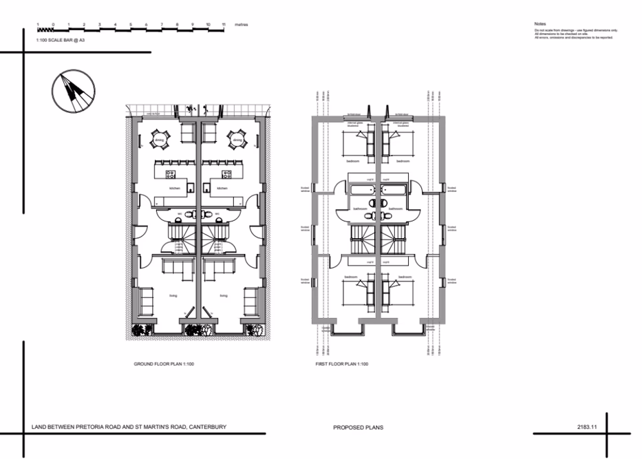
PLOT OF LAND AVAILABLE IN FANTASTIC LOCATION CLOSE TO CANTERBURY'S CITY CENTRE! The plot comes with recommended planning approval for a pair of two semi-detached units. Call Woodward & Bishopp for more information.
Rural Property in LAND Off North Holmes Road for Sale - £180,000
Size not specified
rural properties
available
freehold
Description
PLOT OF LAND AVAILABLE IN FANTASTIC LOCATION CLOSE TO CANTERBURY'S CITY CENTRE! The plot comes with recommended planning approval for a pair of two semi-detached units. Call Woodward & Bishopp for more information.
Contact Agent
Woodward & Bishopp, Herne Bay
Location
LAND Off North Holmes Road