




1.0-Acre Field Land for Sale in Hertfordshire
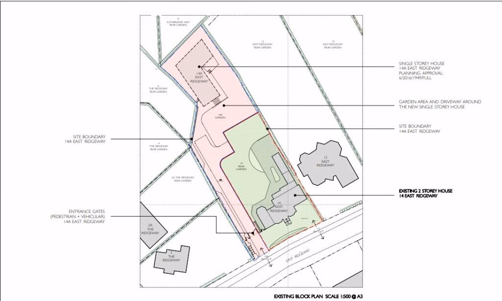
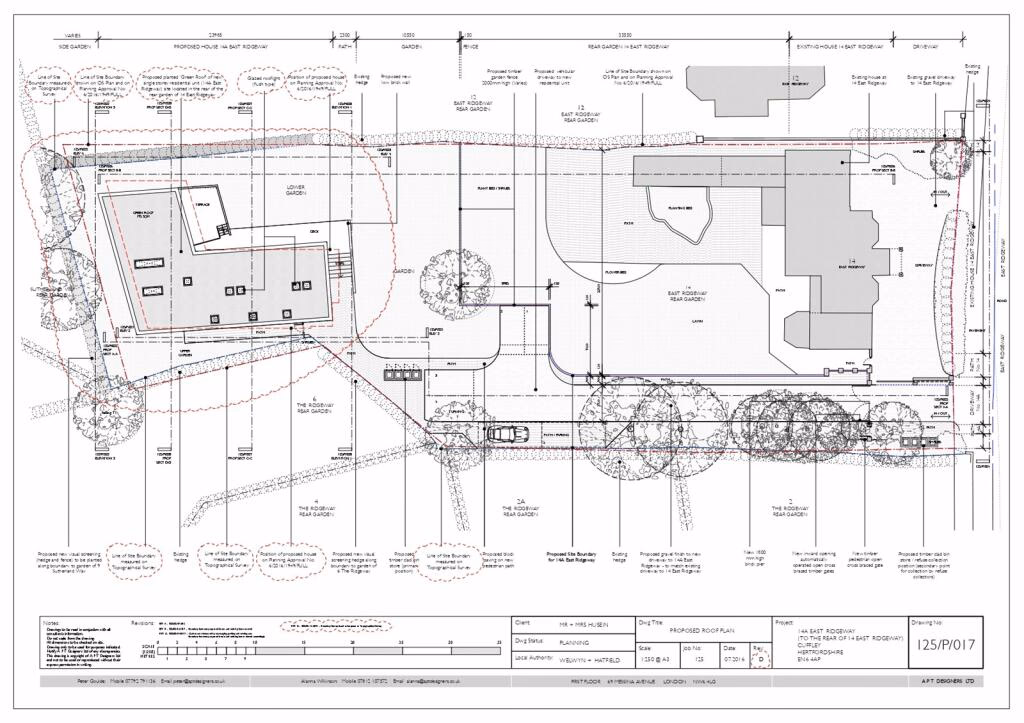
**Planning Permission Granted ** Planning granted for a split level 4-bedroom detached home with the principal accommodation set at the lower level facing onto the garden / deck area. The front of the house faces south, and the principal rooms face east across the rear. The ...
1.0-Acre Field Land for Sale in Hertfordshire
Description
**Planning Permission Granted ** Planning granted for a split level 4-bedroom detached home with the principal accommodation set at the lower level facing onto the garden / deck area. The front of the house faces south, and the principal rooms face east across the rear. The ...
Contact Agent
Smart Picks — Professionals Relevant to This Land
Based on this property's key features, here are the specialists you may want to consult as part of your due diligence: land agents, rics surveyors, rural solicitors and planning consultants.

Land Agents
Essential for navigating the land market, finding buyers, and securing the best price.

RICS Surveyors
High-value property (£850K+) requires professional valuation for accurate pricing and due diligence.

Rural Solicitors
Significant investment (£850K+) requires legal expertise for conveyancing, title checks, and transaction security.

Planning Consultants
Planning-sensitive site needs expert guidance for applications and development strategy.
Location
EN6