




0.01-Acre Field Land for Sale in Hertfordshire
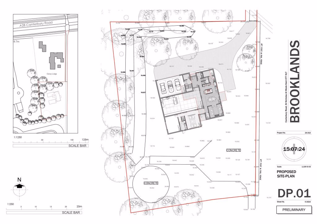
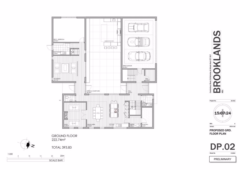
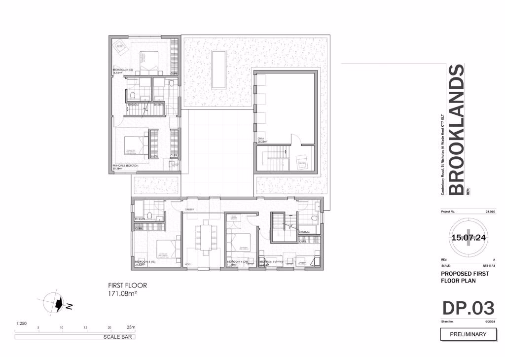
You’ve got a plot of land just between St Nicholas and Birchington — a rare find, tucked away enough to escape the Thanet traffic but close enough to everything that matters.This plot sits in one of the area’s semi-rural settings, with commanding farmland views, offering space, peace, and that golden blend of countryside calm with easy access to the big smoke. It has full planning permission for a lovingly designed 4,300 sqft residence. Geek, along with other agents have estimated the value of the finished article, at somewhere in the region of £1.6–£1.7m if finished well (*subject to a million conditions and caveats).We have simply caught the owners in between projects, and they’re reluctantly ready to let this up… to the right people.There are options: It’s an opportunity for development, or a potential self-build, construct your home from the ground up. Or if you’re looking to kick back and put your feet up, the current owners have pawed over the spec and design of this property that they’d be happy to assist you with its creation.
0.01-Acre Field Land for Sale in Hertfordshire
Description
You’ve got a plot of land just between St Nicholas and Birchington — a rare find, tucked away enough to escape the Thanet traffic but close enough to everything that matters.This plot sits in one of the area’s semi-rural settings, with commanding farmland views, offering space, peace, and that golden blend of countryside calm with easy access to the big smoke. It has full planning permission for a lovingly designed 4,300 sqft residence. Geek, along with other agents have estimated the value of the finished article, at somewhere in the region of £1.6–£1.7m if finished well (*subject to a million conditions and caveats).We have simply caught the owners in between projects, and they’re reluctantly ready to let this up… to the right people.There are options: It’s an opportunity for development, or a potential self-build, construct your home from the ground up. Or if you’re looking to kick back and put your feet up, the current owners have pawed over the spec and design of this property that they’d be happy to assist you with its creation.
Contact Agent
Smart Picks — Professionals Relevant to This Land
Based on this property's key features, here are the specialists you may want to consult as part of your due diligence: land agents, rics surveyors, rural solicitors and planning consultants.

Land Agents
Essential for navigating the land market, finding buyers, and securing the best price.

RICS Surveyors
High-value property (£550K+) requires professional valuation for accurate pricing and due diligence.

Rural Solicitors
Significant investment (£550K+) requires legal expertise for conveyancing, title checks, and transaction security.

Planning Consultants
Planning-sensitive site needs expert guidance for applications and development strategy.
Location
CT7