




Development Land in Land at troys Mead for Sale - £209,000
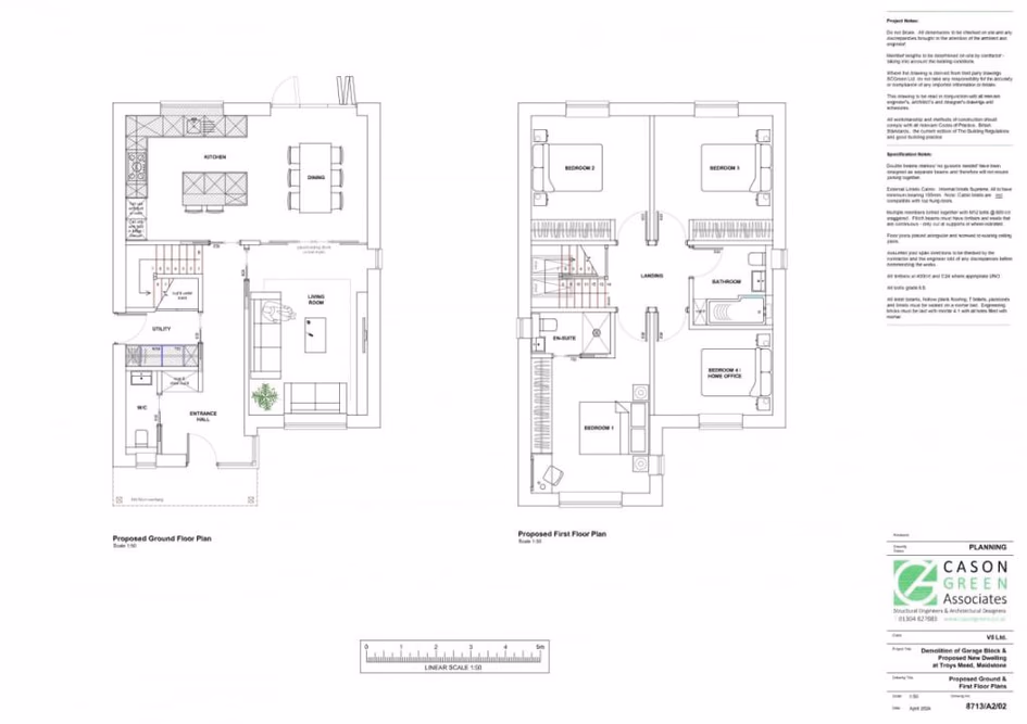
Land with Full Planning permission for a detached house Great village location close to Maidstone Rarely available building plot Full planning permission granted for a 4 bedroom detached house with ensuite Planning reference: MAIDSTONE 24/501857/FULL House is 130 sq m internal measurement (app
Development Land in Land at troys Mead for Sale - £209,000
Description
Land with Full Planning permission for a detached house Great village location close to Maidstone Rarely available building plot Full planning permission granted for a 4 bedroom detached house with ensuite Planning reference: MAIDSTONE 24/501857/FULL House is 130 sq m internal measurement (app
Contact Agent
Smart Picks — Professionals Relevant to This Land
Based on this property's key features, here are the specialists you may want to consult as part of your due diligence: land agents, rural solicitors and planning consultants.

Land Agents
Essential for navigating the land market, finding buyers, and securing the best price.

Rural Solicitors
Significant investment (£209K+) requires legal expertise for conveyancing, title checks, and transaction security.

Planning Consultants
Planning-sensitive site needs expert guidance for applications and development strategy.
Location
Land at troys Mead