




Development Land in Lynns Court for Sale - £300,000
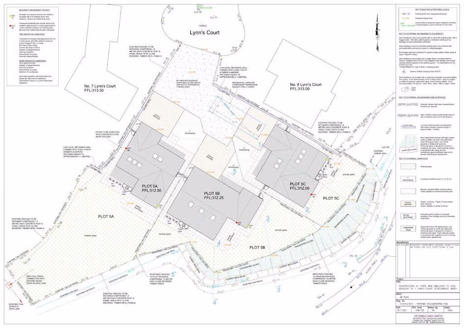
Fantastic development opportunity with full planning permission for three luxury detached homes on a 0.49-acre site in the sought-after village of Weir. Complete with detailed architectural plans, engineered retaining structures, and approved landscaping layouts, this plot offers exceptional pote...
Development Land in Lynns Court for Sale - £300,000
Description
Fantastic development opportunity with full planning permission for three luxury detached homes on a 0.49-acre site in the sought-after village of Weir. Complete with detailed architectural plans, engineered retaining structures, and approved landscaping layouts, this plot offers exceptional pote...
Contact Agent
Smart Picks — Professionals Relevant to This Land
Based on this property's key features, here are the specialists you may want to consult as part of your due diligence: land agents, rural solicitors, planning consultants and rics surveyors.

Land Agents
Essential for navigating the land market, finding buyers, and securing the best price.

Rural Solicitors
Significant investment (£300K+) requires legal expertise for conveyancing, title checks, and transaction security.

Planning Consultants
Planning-sensitive site needs expert guidance for applications and development strategy.

RICS Surveyors
Prime or productive land requires professional valuation to ensure fair market value.
Location
Lynns Court