Property Image 1
1/6
£100K
Size not specified

Development Land in Normans Way for Sale - £100,000

Size not specified
development
available
freehold

Description

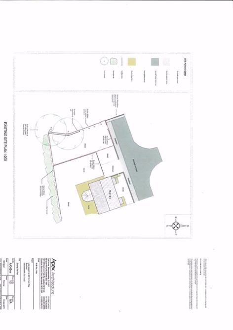
Rarely available a potential Building Plot in the ever popular Village of Ruardean. Outline Planning had been approved but this has now lapsed. The former Outline application was for the erection of a detached dwelling with associated parking, amenity space and ancillary works.

Contact Agent

KJT Residential, Forest of Dean

Location

Normans Way

Development Land in Normans Way for Sale - £100,000 - £100K | Development for Sale