




0.8-Acre Field Land for Sale in Essex
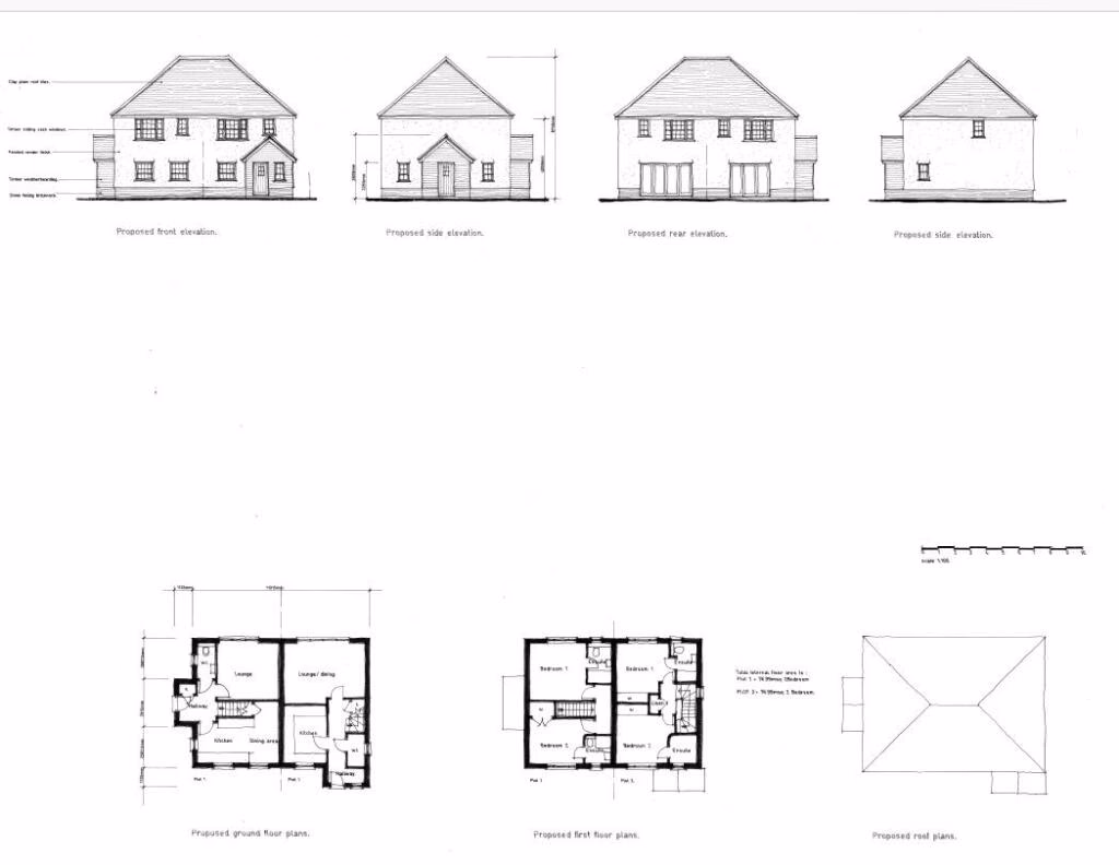
DEVELOPMENT SITE FOR SALE - 0.8 acre site with full detailed planning approval for 6 dwellings. The site is being sold subject to a planning variation application which the sellers are in the process of completing themselves.
0.8-Acre Field Land for Sale in Essex
Description
DEVELOPMENT SITE FOR SALE - 0.8 acre site with full detailed planning approval for 6 dwellings. The site is being sold subject to a planning variation application which the sellers are in the process of completing themselves.
Contact Agent
Smart Picks — Professionals Relevant to This Land
Based on this property's key features, here are the specialists you may want to consult as part of your due diligence: land agents, rics surveyors, rural solicitors and planning consultants.

Land Agents
Essential for navigating the land market, finding buyers, and securing the best price.

RICS Surveyors
High-value property (£775K+) requires professional valuation for accurate pricing and due diligence.

Rural Solicitors
Significant investment (£775K+) requires legal expertise for conveyancing, title checks, and transaction security.

Planning Consultants
Planning-sensitive site needs expert guidance for applications and development strategy.
Location
Southminster