




Plot for sale - 0.2 Acres
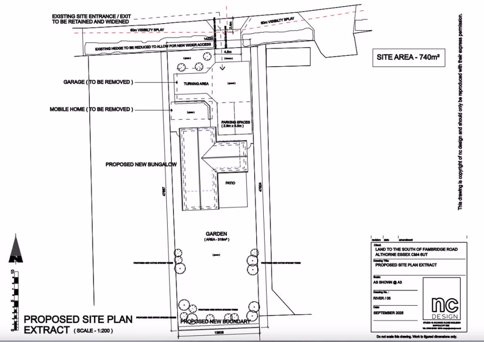
Being sold with the benefit of outline planning for a three bedroom detached bungalow, is this secluded building plot measuring approx 740 square meters or 0.182 acres, boasting splendid panoramic far reaching south-facing views over the Crouch Valley and River Crouch. The outline appl...
Plot for sale - 0.2 Acres
Description
Being sold with the benefit of outline planning for a three bedroom detached bungalow, is this secluded building plot measuring approx 740 square meters or 0.182 acres, boasting splendid panoramic far reaching south-facing views over the Crouch Valley and River Crouch. The outline appl...
Contact Agent
Smart Picks — Professionals Relevant to This Land
Based on this property's key features, here are the specialists you may want to consult as part of your due diligence: land agents, rural solicitors, environmental consultants and planning consultants.

Land Agents
Essential for navigating the land market, finding buyers, and securing the best price.

Rural Solicitors
Significant investment (£225K+) requires legal expertise for conveyancing, title checks, and transaction security.

Environmental Consultants
River frontage requires environmental assessment for flood risk, water quality, and habitat protection.

Planning Consultants
Planning-sensitive site needs expert guidance for applications and development strategy.
Location
Fambridge Road