


Development Land in Building Plot With Outline Planning Permission for Sale - £100,000
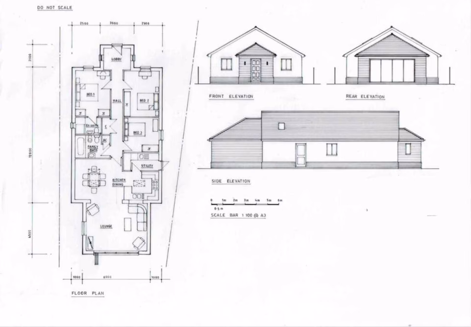
A building plot situated towards the outskirts of Clacton on Sea on the popular Tudor Development, which in the valuers opinion offers the perfect opportunity to build a three bedroom detached property. Further planning information can be found using the planning reference of 24/01883/OUT.
Development Land in Building Plot With Outline Planning Permission for Sale - £100,000
Description
A building plot situated towards the outskirts of Clacton on Sea on the popular Tudor Development, which in the valuers opinion offers the perfect opportunity to build a three bedroom detached property. Further planning information can be found using the planning reference of 24/01883/OUT.
Contact Agent
Smart Picks — Professionals Relevant to This Land
Based on this property's key features, here are the specialists you may want to consult as part of your due diligence: land agents, planning consultants and rics surveyors.

Land Agents
Essential for navigating the land market, finding buyers, and securing the best price.

Planning Consultants
Planning-sensitive site needs expert guidance for applications and development strategy.

RICS Surveyors
Prime or productive land requires professional valuation to ensure fair market value.
Location
Building Plot With Outline Planning Permission