




Plot for sale
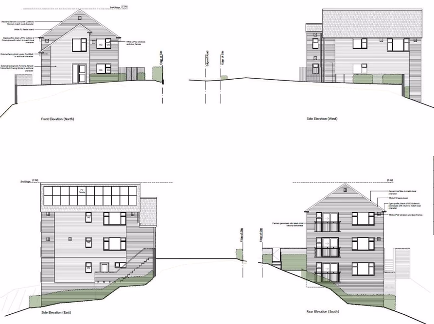
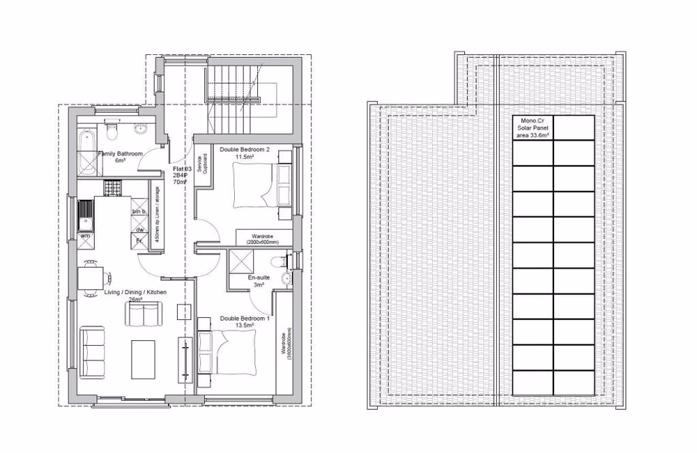
*** GUIDE PRICE £90,000 TO £100,000 - INVESTMENT OPPORTUNITY *** PCM Estate Agents present to the market this opportunity to acquire a DEVELOPMENT OPPORTUNITY to construct a DETACHED BUILDING comprising of 3X TWO BEDROOM FLATS. More information can be found under Planning Ref: HS/DS/21/0...
Plot for sale
Description
*** GUIDE PRICE £90,000 TO £100,000 - INVESTMENT OPPORTUNITY *** PCM Estate Agents present to the market this opportunity to acquire a DEVELOPMENT OPPORTUNITY to construct a DETACHED BUILDING comprising of 3X TWO BEDROOM FLATS. More information can be found under Planning Ref: HS/DS/21/0...
Contact Agent
Smart Picks — Professionals Relevant to This Land
Based on this property's key features, here are the specialists you may want to consult as part of your due diligence: land agents, planning consultants and rics surveyors.

Land Agents
Essential for navigating the land market, finding buyers, and securing the best price.

Planning Consultants
Planning-sensitive site needs expert guidance for applications and development strategy.

RICS Surveyors
Prime or productive land requires professional valuation to ensure fair market value.
Location
Harley Way