




Plot for sale
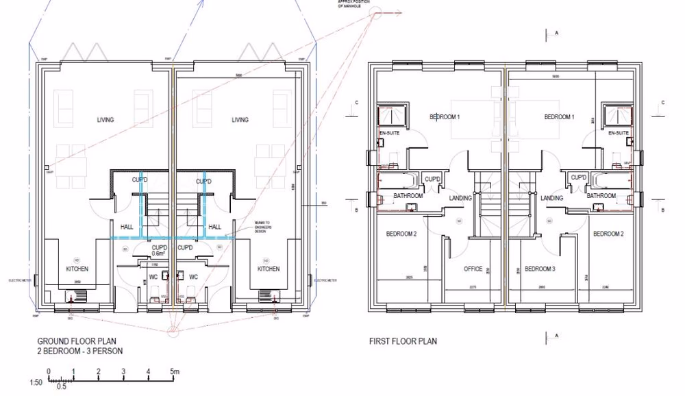
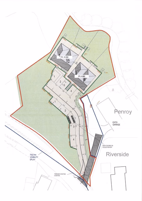
NOTE: The owners have paid the CIL payment and £95,000 will be payable in addition to the sale price. A wonderful opportunity to acquire a development site to construct four three bedroom semi detached houses with the benefit of commenced planning permission with foundations ...
Plot for sale
Description
NOTE: The owners have paid the CIL payment and £95,000 will be payable in addition to the sale price. A wonderful opportunity to acquire a development site to construct four three bedroom semi detached houses with the benefit of commenced planning permission with foundations ...
Contact Agent
Smart Picks — Professionals Relevant to This Land
Based on this property's key features, here are the specialists you may want to consult as part of your due diligence: land agents, rics surveyors, rural solicitors and planning consultants.

Land Agents
Essential for navigating the land market, finding buyers, and securing the best price.

RICS Surveyors
High-value property (£450K+) requires professional valuation for accurate pricing and due diligence.

Rural Solicitors
Significant investment (£450K+) requires legal expertise for conveyancing, title checks, and transaction security.

Planning Consultants
Planning-sensitive site needs expert guidance for applications and development strategy.
Location
Crowhurst