
1/3


£130K
0.02 acres
£130K
Anchor
0.02 acres
0.02-Acre Development Land for Sale in East Sussex
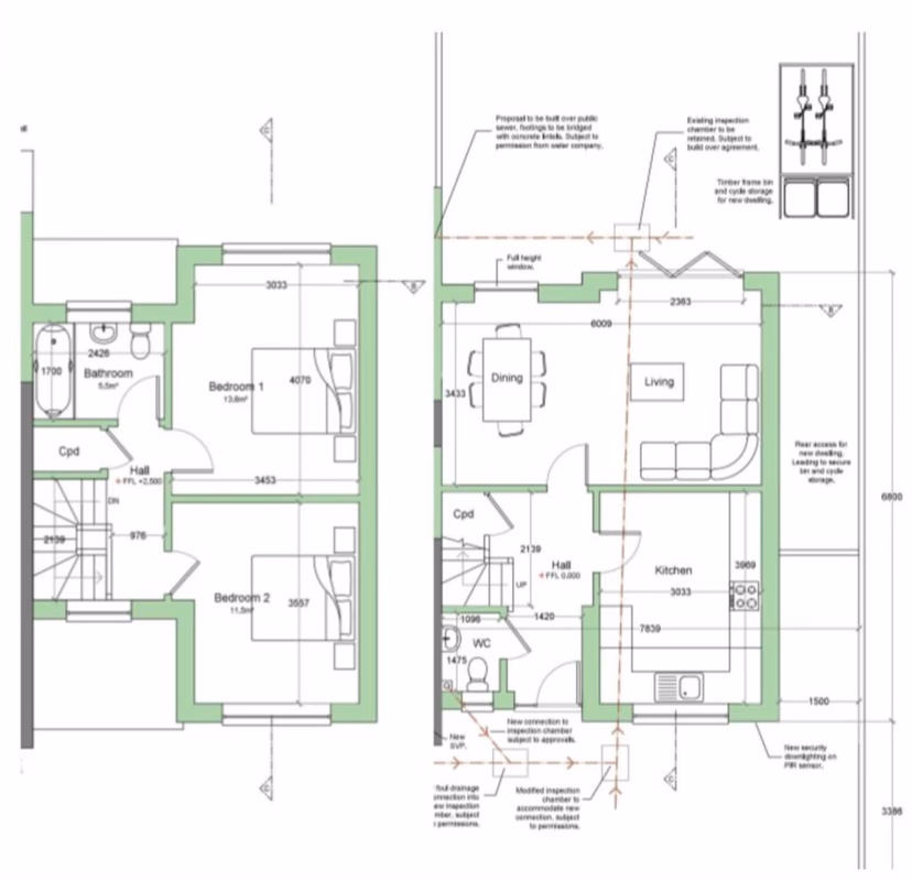
Building plot with full planning permission for a new end-of-terrace house, comprising two double bedrooms, a new bathroom, entrance hall, downstairs cloakroom, new kitchen, and a full-width sitting room. The property will benefit from both a front garden and a south-facing rear garden.
0.02-Acre Development Land for Sale in East Sussex
0.02 acres
development
available
freehold
Description
Building plot with full planning permission for a new end-of-terrace house, comprising two double bedrooms, a new bathroom, entrance hall, downstairs cloakroom, new kitchen, and a full-width sitting room. The property will benefit from both a front garden and a south-facing rear garden.
Contact Agent
Charles Wycherley Independent Estate Agents, Lewes
Location
Anchor