




Plot for sale
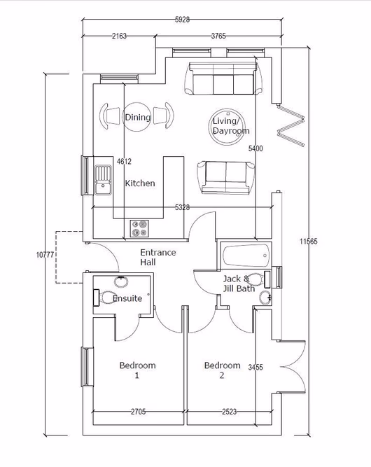
BUILDING PLOT WITH PLANNING APPROVAL GRANTED FOR A 2 BEDROOM BUNGALOW For sale is this bare plot of land located on Greenacre Park with full planning approval having been granted on the 4th July 2024 for a single storey detached bungalow - full conditions available to view on the East Riding ...
Plot for sale
Description
BUILDING PLOT WITH PLANNING APPROVAL GRANTED FOR A 2 BEDROOM BUNGALOW For sale is this bare plot of land located on Greenacre Park with full planning approval having been granted on the 4th July 2024 for a single storey detached bungalow - full conditions available to view on the East Riding ...
Contact Agent
Smart Picks — Professionals Relevant to This Land
Based on this property's key features, here are the specialists you may want to consult as part of your due diligence: land agents and planning consultants.
Location
Land North East of Hansa House

