




0.5 Acres Development Land in Crown Drive for Sale - £15,000
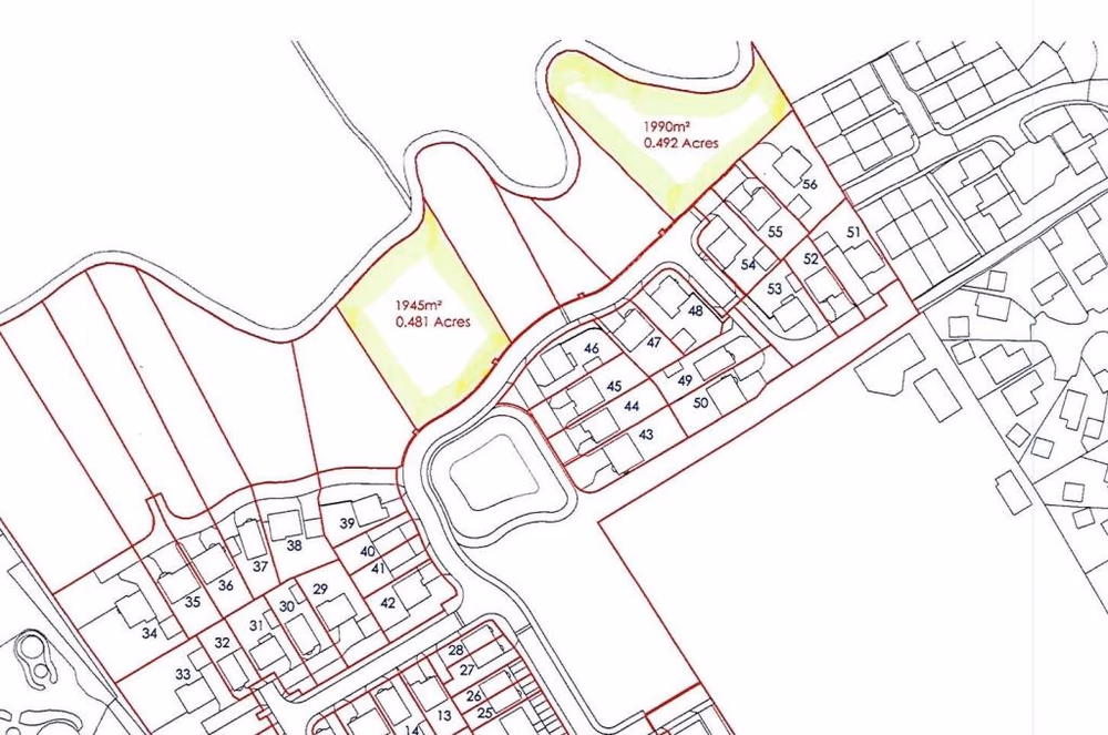
The two pieces of land extend to c. 0.481 acres and 0.492 acres respectively ( c. 0.195 and c. 0.199 hectares). The land is currently sown to grass and was established as part of the development. It gently slopes towards Lambwath Stream. A new hedge and ornamental tree planting has been carried...
0.5 Acres Development Land in Crown Drive for Sale - £15,000
Description
The two pieces of land extend to c. 0.481 acres and 0.492 acres respectively ( c. 0.195 and c. 0.199 hectares). The land is currently sown to grass and was established as part of the development. It gently slopes towards Lambwath Stream. A new hedge and ornamental tree planting has been carried...
Contact Agent
Smart Picks — Professionals Relevant to This Land
Based on this property's key features, here are the specialists you may want to consult as part of your due diligence: land agents, environmental consultants, land consultants and rics surveyors.

Land Agents
Essential for navigating the land market, finding buyers, and securing the best price.

Environmental Consultants
River frontage requires environmental assessment for flood risk, water quality, and habitat protection.

Land Consultants
Extensive landholding needs strategic consultation for development potential and long-term value.

RICS Surveyors
Prime or productive land requires professional valuation to ensure fair market value.
Location
Crown Drive