




Development Land in The Woodlands for Sale - £350,000
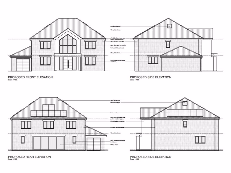
CJ Hole are delighted to offer for sale Plot B The Woodlands, presenting a rare opportunity to acquire an individual building plot set within a desirable and well-established residential location, ideal for those seeking to create a bespoke home.
Development Land in The Woodlands for Sale - £350,000
Description
CJ Hole are delighted to offer for sale Plot B The Woodlands, presenting a rare opportunity to acquire an individual building plot set within a desirable and well-established residential location, ideal for those seeking to create a bespoke home.
Contact Agent
Smart Picks — Professionals Relevant to This Land
Based on this property's key features, here are the specialists you may want to consult as part of your due diligence: land agents, rics surveyors, rural solicitors and environmental consultants.

Land Agents
Essential for navigating the land market, finding buyers, and securing the best price.

RICS Surveyors
High-value property (£350K+) requires professional valuation for accurate pricing and due diligence.

Rural Solicitors
Significant investment (£350K+) requires legal expertise for conveyancing, title checks, and transaction security.

Environmental Consultants
Protected habitats and conservation areas require environmental impact assessments.
Location
The Woodlands