




Plot for sale
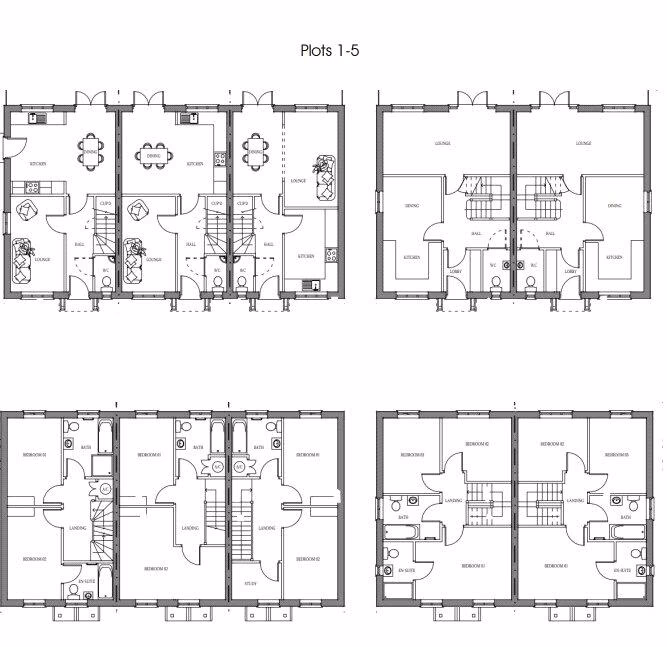
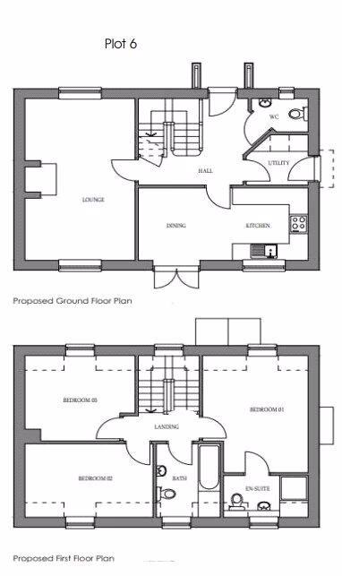
A unique opportunity to acquire a development site for 6 dwellings located in the village of Pimperne in the highly sought-after Cranborne Chase.
Plot for sale
Description
A unique opportunity to acquire a development site for 6 dwellings located in the village of Pimperne in the highly sought-after Cranborne Chase.
Contact Agent
Smart Picks — Professionals Relevant to This Land
Based on this property's key features, here are the specialists you may want to consult as part of your due diligence: land agents, rics surveyors and rural solicitors.

Land Agents
Essential for navigating the land market, finding buyers, and securing the best price.

RICS Surveyors
High-value property (£515K+) requires professional valuation for accurate pricing and due diligence.

Rural Solicitors
Significant investment (£515K+) requires legal expertise for conveyancing, title checks, and transaction security.
Location
Pimperne