




1.00-Acre Rural Land for Sale in Devon
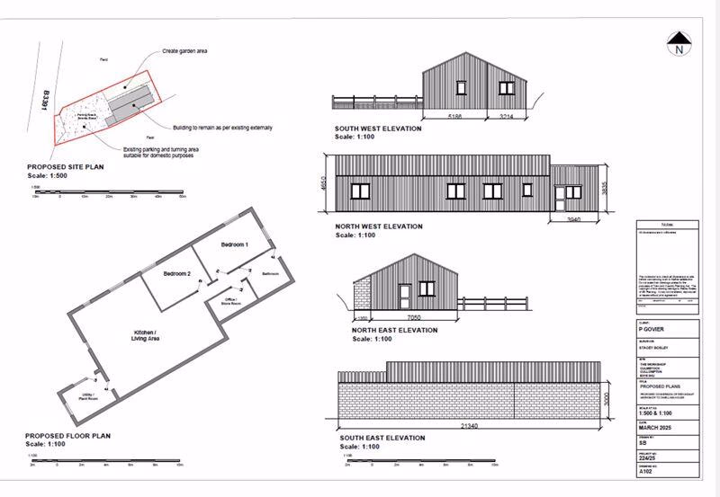
A fantastic opportunity to acquire this former workshop with class MA approval for conversion to a 2 bedroom single story dwelling situated in a semi-rural location less than a mile from the popular village of Culmstock. 'The Workshop' has already undergone the first phase of work, including:...
1.00-Acre Rural Land for Sale in Devon
Description
A fantastic opportunity to acquire this former workshop with class MA approval for conversion to a 2 bedroom single story dwelling situated in a semi-rural location less than a mile from the popular village of Culmstock. 'The Workshop' has already undergone the first phase of work, including:...
Contact Agent
Smart Picks — Professionals Relevant to This Land
Based on this property's key features, here are the specialists you may want to consult as part of your due diligence: land agents and rural solicitors.
Location
Cullompton

