




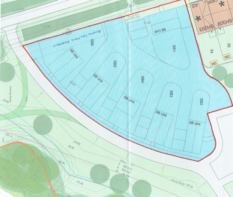
1.0-Acre Field Land for Sale in Devon
Development site with full planning provision for 6 Self-Build Dwellings a unique opportunity ideal for developers, self-build groups or investors.
1.0-Acre Field Land for Sale in Devon
Description
Development site with full planning provision for 6 Self-Build Dwellings a unique opportunity ideal for developers, self-build groups or investors.
Contact Agent
Smart Picks — Professionals Relevant to This Land
Based on this property's key features, here are the specialists you may want to consult as part of your due diligence: land agents, rics surveyors, rural solicitors and planning consultants.

Land Agents
Essential for navigating the land market, finding buyers, and securing the best price.

RICS Surveyors
High-value property (£800K+) requires professional valuation for accurate pricing and due diligence.

Rural Solicitors
Significant investment (£800K+) requires legal expertise for conveyancing, title checks, and transaction security.

Planning Consultants
Planning-sensitive site needs expert guidance for applications and development strategy.
Location
GL11