
1/7




+2
more
£225K
0.04 acres
£225K
EX4
0.04 acres
0.04-Acre Development Land for Sale in Devon
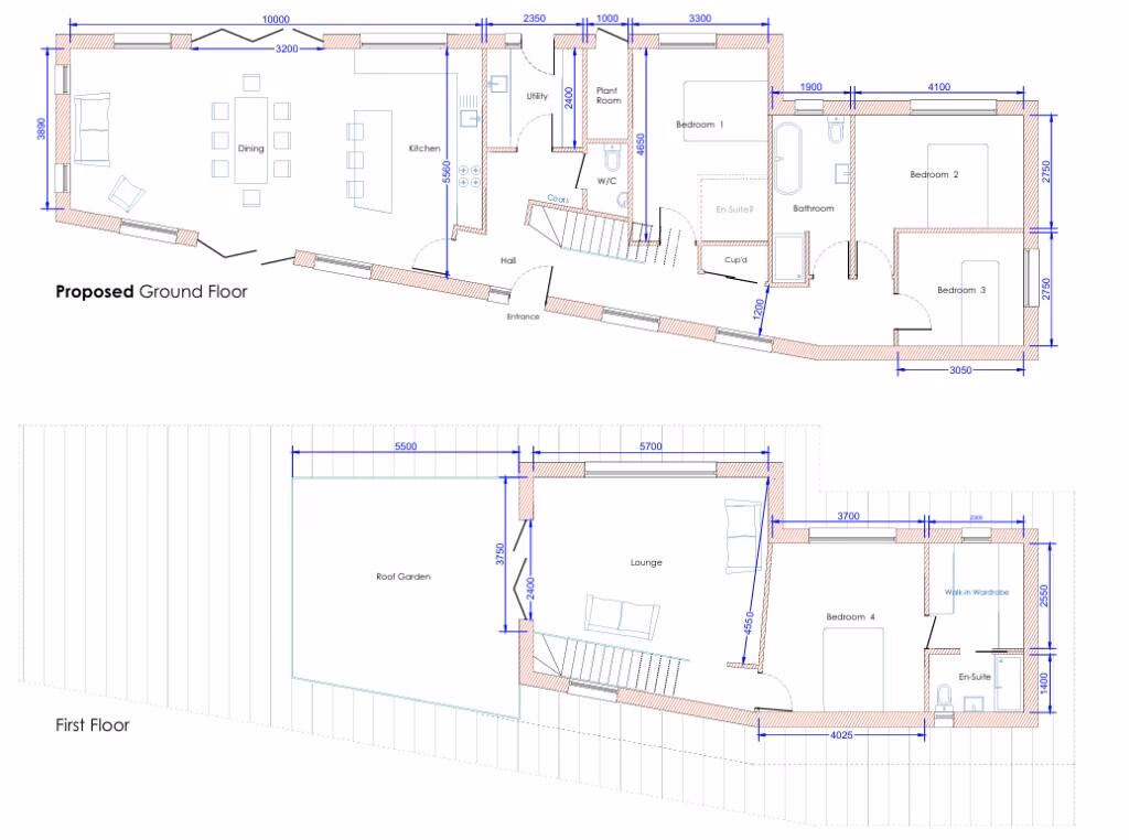
This single building plot is situated on Exwick Lane on the north western side of Exeter. Detailed planning has been granted for the removal of the existing property and caravan, and their replacement with a new two storey contemporary home of c. 181sqm (1948sqft).
0.04-Acre Development Land for Sale in Devon
0.04 acres
development
available
freehold
Description
This single building plot is situated on Exwick Lane on the north western side of Exeter. Detailed planning has been granted for the removal of the existing property and caravan, and their replacement with a new two storey contemporary home of c. 181sqm (1948sqft).
Contact Agent
KLP, Exeter
Location
EX4