Property Image 1
1/5
£375K
0.2 acres

0.2 Acres Development Land in Mount Street for Sale - £375,000

0.2 acres
development
available
freehold

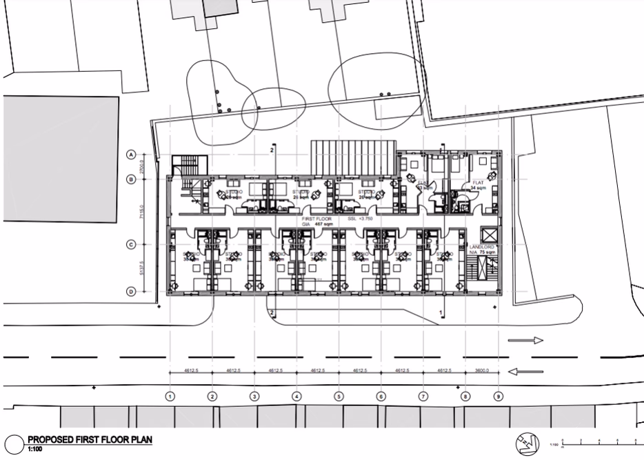
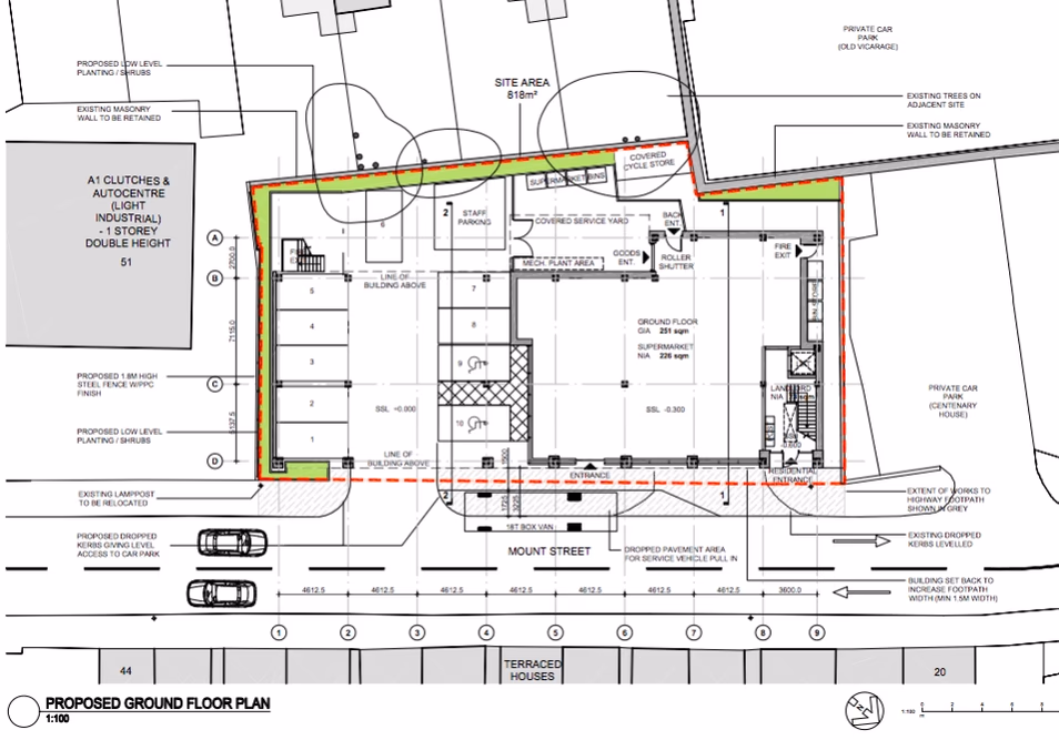
Description

** ATTENTION DEVELOPERS / INVESTORS / BUILDERS ** AUCTION IS NOW LIVE - NEW PRICE ** A fantastic development opportunity in Derby's City Centre to be sold by Modern Method of Auction. The site, which is approximately 0.2 acres in total compr...

Contact Agent

EweMove, Covering Yorkshire

Location

Mount Street