
3.0-Acre Development Land for Sale in Cumbria
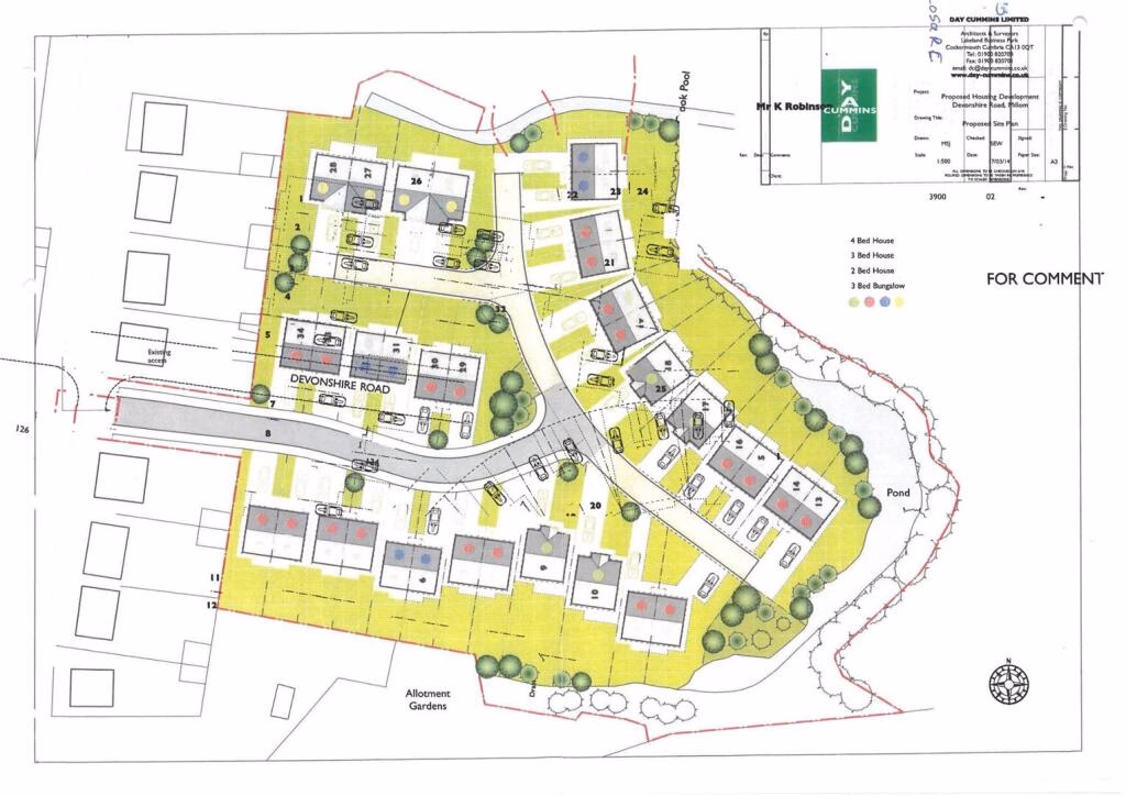
Prime Freehold Development Opportunity Approx. 3 Acres – Former Planning Permission for Housing An exceptional parcel of freehold land, extending to approximately three acres, situated with established access off Devonshire Road. Previously held lapsed planning permission (Ref: 4/76/0...
3.0-Acre Development Land for Sale in Cumbria
Description
Prime Freehold Development Opportunity Approx. 3 Acres – Former Planning Permission for Housing An exceptional parcel of freehold land, extending to approximately three acres, situated with established access off Devonshire Road. Previously held lapsed planning permission (Ref: 4/76/0...
Contact Agent
Smart Picks — Professionals Relevant to This Land
Based on this property's key features, here are the specialists you may want to consult as part of your due diligence: land agents, rics surveyors, rural solicitors, planning consultants and land consultants.

Land Agents
Essential for navigating the land market, finding buyers, and securing the best price.

RICS Surveyors
High-value property (£1000K+) requires professional valuation for accurate pricing and due diligence.

Rural Solicitors
Significant investment (£1000K+) requires legal expertise for conveyancing, title checks, and transaction security.

Planning Consultants
Planning-sensitive site needs expert guidance for applications and development strategy.

Land Consultants
Multiple parcels or complex land structure requires expert analysis for optimal development strategy.
Location
Millom