




1.0-Acre Field Land for Sale in County Durham
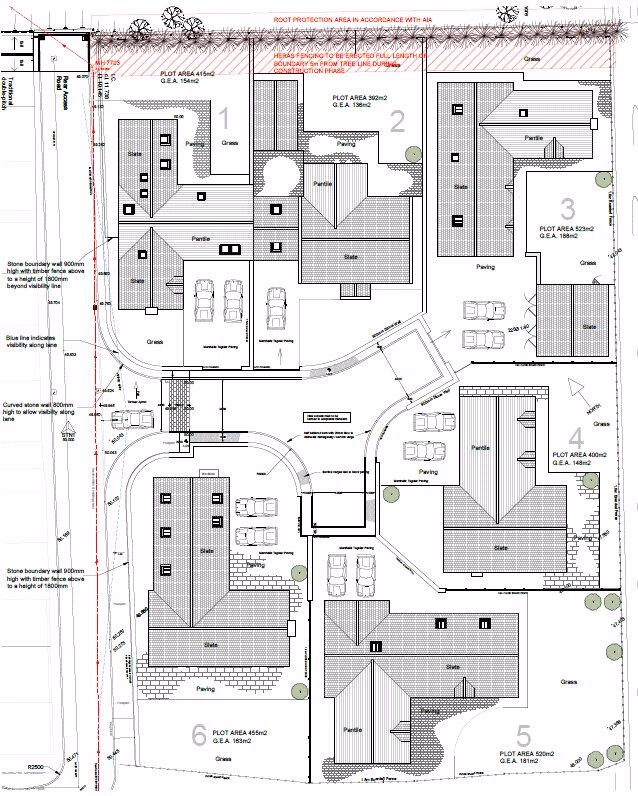
OPPORTUNITY Bradley Hall are delighted to offer an opportunity to purchase f 6 exclusive development plots that all benefit from being fully serviced. LOCATION & DESCRIPTION The subject site is located to the south east of John Street South, Meadowfield, Durham. The sur...
1.0-Acre Field Land for Sale in County Durham
Description
OPPORTUNITY Bradley Hall are delighted to offer an opportunity to purchase f 6 exclusive development plots that all benefit from being fully serviced. LOCATION & DESCRIPTION The subject site is located to the south east of John Street South, Meadowfield, Durham. The sur...
Contact Agent
Smart Picks — Professionals Relevant to This Land
Based on this property's key features, here are the specialists you may want to consult as part of your due diligence: land agents, rics surveyors and rural solicitors.

Land Agents
Essential for navigating the land market, finding buyers, and securing the best price.

RICS Surveyors
High-value property (£750K+) requires professional valuation for accurate pricing and due diligence.

Rural Solicitors
Significant investment (£750K+) requires legal expertise for conveyancing, title checks, and transaction security.
Location
DH7