




1.00-Acre Development Land for Sale in County Durham
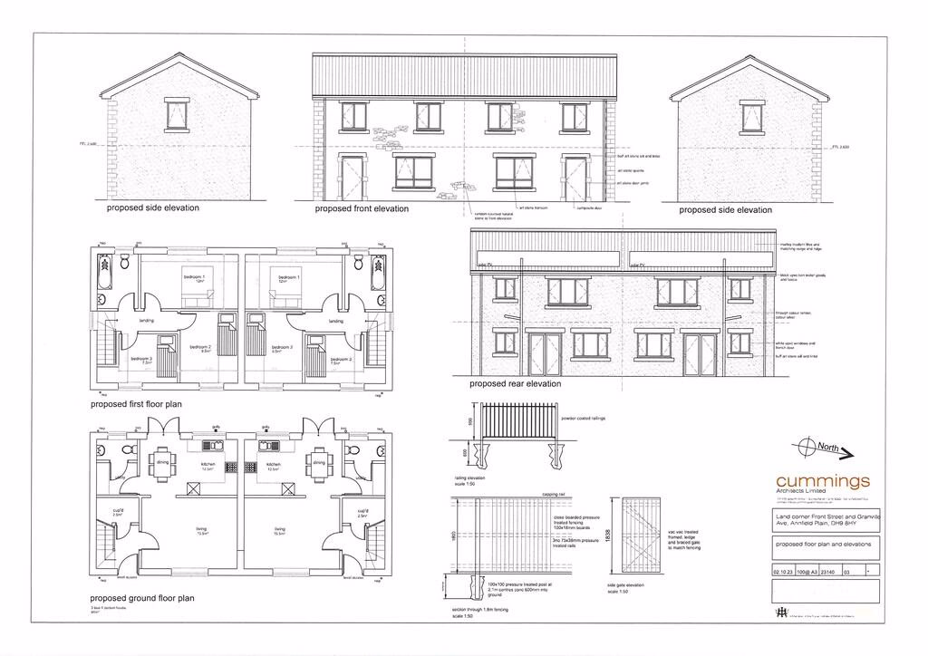
Prime development land for sale near Annfield Plain town centre, with full planning permission (Ref: DM/23/03715/FPA) for the construction of two three-bedroom semi-detached homes. The site, measuring approximately 252 sq.m (2,719 sq. ft), is ready for immediate development, offering an excellent...
1.00-Acre Development Land for Sale in County Durham
Description
Prime development land for sale near Annfield Plain town centre, with full planning permission (Ref: DM/23/03715/FPA) for the construction of two three-bedroom semi-detached homes. The site, measuring approximately 252 sq.m (2,719 sq. ft), is ready for immediate development, offering an excellent...
Contact Agent
Smart Picks — Professionals Relevant to This Land
Based on this property's key features, here are the specialists you may want to consult as part of your due diligence: land agents, planning consultants and rics surveyors.

Land Agents
Essential for navigating the land market, finding buyers, and securing the best price.

Planning Consultants
Planning-sensitive site needs expert guidance for applications and development strategy.

RICS Surveyors
Prime or productive land requires professional valuation to ensure fair market value.
Location
Unknown