




1.00-Acre Development Land for Sale in Cornwall
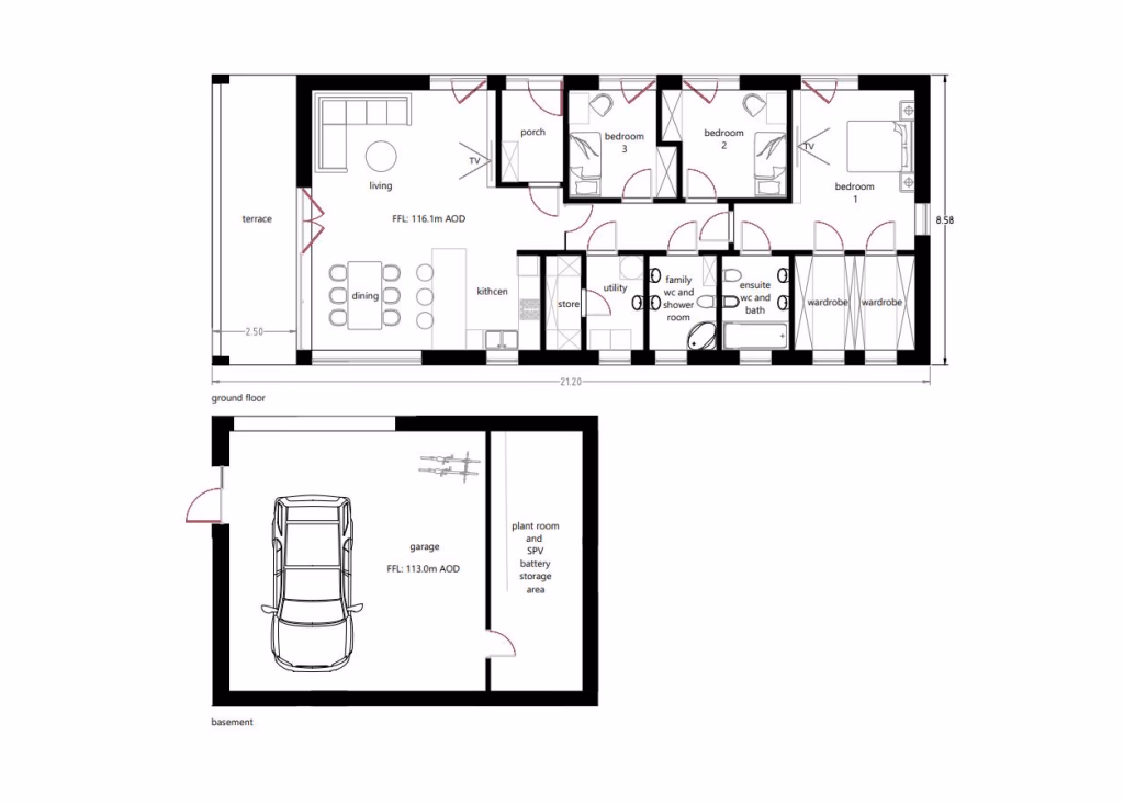
INDIVIDUAL BUILDING PLOT SOLD WITH NO CHAIN This is a unique opportunity to purchase an individual building plot with detailed planning permission granted for the construction of a substantial three bedroom detached single storey dwelling. The dwelling is situated in a convenient locatio...
1.00-Acre Development Land for Sale in Cornwall
Description
INDIVIDUAL BUILDING PLOT SOLD WITH NO CHAIN This is a unique opportunity to purchase an individual building plot with detailed planning permission granted for the construction of a substantial three bedroom detached single storey dwelling. The dwelling is situated in a convenient locatio...
Contact Agent
Smart Picks — Professionals Relevant to This Land
Based on this property's key features, here are the specialists you may want to consult as part of your due diligence: land agents, rural solicitors, planning consultants and land consultants.

Land Agents
Essential for navigating the land market, finding buyers, and securing the best price.

Rural Solicitors
Significant investment (£200K+) requires legal expertise for conveyancing, title checks, and transaction security.

Planning Consultants
Planning-sensitive site needs expert guidance for applications and development strategy.

Land Consultants
Extensive landholding needs strategic consultation for development potential and long-term value.
Location
St. Austell