




0.03-Acre Development Land for Sale in Cornwall
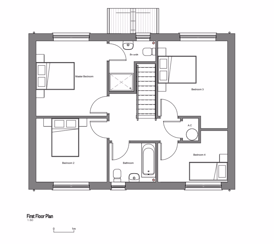
A rare opportunity to purchase a single building plot in this popular village location. Planning for a good size four bedroom house with en suite master bedroom and a detached, generous carport. Ample parking, gardens, services connected.
0.03-Acre Development Land for Sale in Cornwall
Description
A rare opportunity to purchase a single building plot in this popular village location. Planning for a good size four bedroom house with en suite master bedroom and a detached, generous carport. Ample parking, gardens, services connected.
Contact Agent
Smart Picks — Professionals Relevant to This Land
Based on this property's key features, here are the specialists you may want to consult as part of your due diligence: land agents, rural solicitors and planning consultants.

Land Agents
Essential for navigating the land market, finding buyers, and securing the best price.

Rural Solicitors
Significant investment (£120K+) requires legal expertise for conveyancing, title checks, and transaction security.

Planning Consultants
Planning-sensitive site needs expert guidance for applications and development strategy.
Location
Building