




Plot for sale
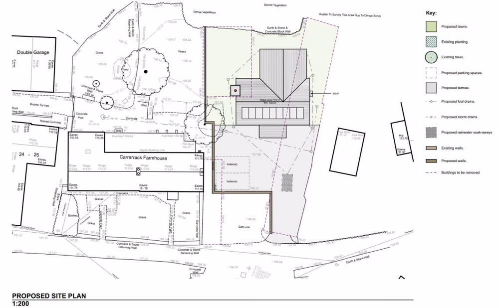
INDIVIDUAL BUILDING PLOT IN POPULAR LOCATION Situated within the hamlet of Botallack; this is a rare opportunity to purchase an individual building plot with detailed planning consent for a substantial five bedroom detached house with gardens and parking. Proposed accommodation...
Plot for sale
Description
INDIVIDUAL BUILDING PLOT IN POPULAR LOCATION Situated within the hamlet of Botallack; this is a rare opportunity to purchase an individual building plot with detailed planning consent for a substantial five bedroom detached house with gardens and parking. Proposed accommodation...
Contact Agent
Smart Picks — Professionals Relevant to This Land
Based on this property's key features, here are the specialists you may want to consult as part of your due diligence: land agents, rural solicitors, planning consultants and land consultants.

Land Agents
Essential for navigating the land market, finding buyers, and securing the best price.

Rural Solicitors
Significant investment (£175K+) requires legal expertise for conveyancing, title checks, and transaction security.

Planning Consultants
Planning-sensitive site needs expert guidance for applications and development strategy.

Land Consultants
Extensive landholding needs strategic consultation for development potential and long-term value.
Location
Botallack