Property Image 1
1/7
£290K
0.93 acres

0.9 Acres Land in High Street for Sale - £290,000

0.93 acres
fields
available
freehold

Description

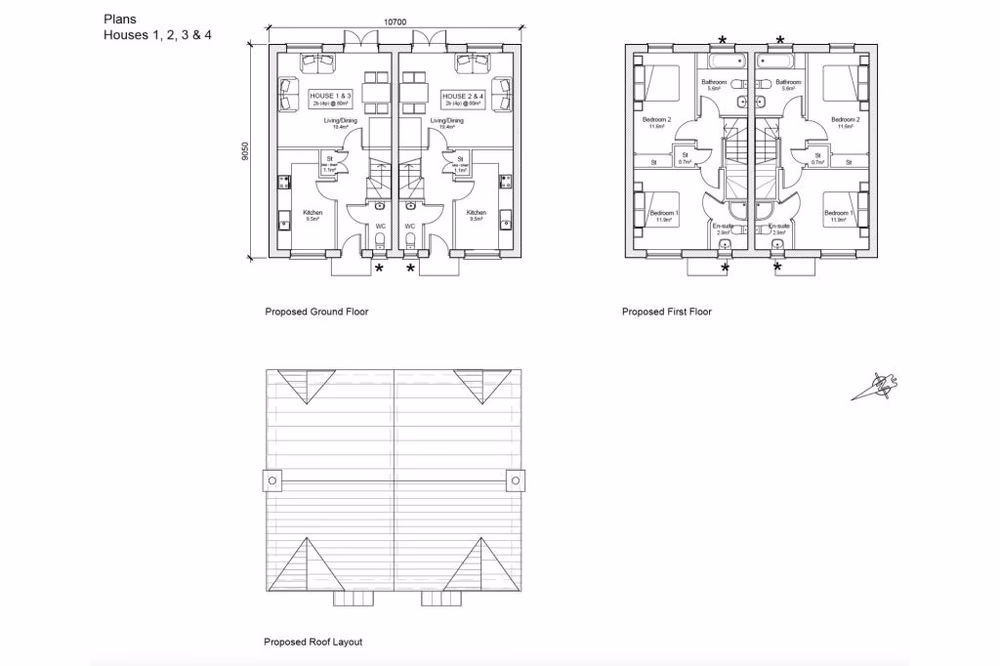
Don’t miss your chance to secure this sought-after opportunity. Planning approved for 8 residential dwellings (mix of 2- & 3-bed units) with allocated parking for all homes. Sought-after location close to Newcastle-under-Lyme and Keele University with strong local demand.

Contact Agent

Heywoods, New Homes

Location

High Street