




0.4 Acres Development Land in Withersfield for Sale - £250,000
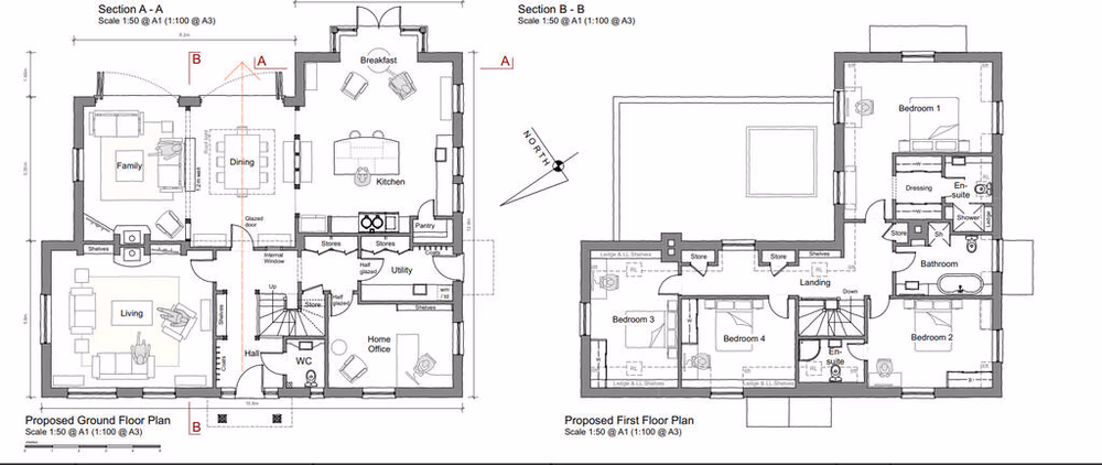
Planning Permissions have been approved for the erection of a circa 3,000 square foot detached four bedroom new house following the demolition of an existing dwelling. The permission enjoys a double cart lodge and sits in a 0.35 acre plot with countryside views. The proposed dwelling enjoys an op...
0.4 Acres Development Land in Withersfield for Sale - £250,000
Description
Planning Permissions have been approved for the erection of a circa 3,000 square foot detached four bedroom new house following the demolition of an existing dwelling. The permission enjoys a double cart lodge and sits in a 0.35 acre plot with countryside views. The proposed dwelling enjoys an op...
Contact Agent
Smart Picks — Professionals Relevant to This Land
Based on this property's key features, here are the specialists you may want to consult as part of your due diligence: land agents, rural solicitors and planning consultants.

Land Agents
Essential for navigating the land market, finding buyers, and securing the best price.

Rural Solicitors
Significant investment (£250K+) requires legal expertise for conveyancing, title checks, and transaction security.

Planning Consultants
Planning-sensitive site needs expert guidance for applications and development strategy.
Location
Withersfield