Property Image 1
1/5
£325K
Size not specified

Plot for sale

Size not specified
development
available
freehold

Description

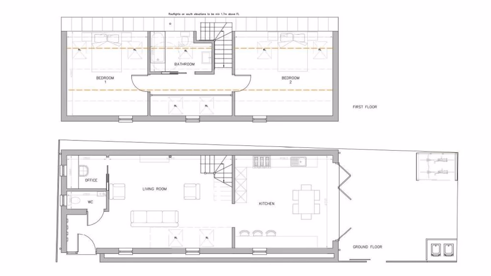
An opportunity to purchase a building plot in the heart of the vibrant Romsey area of the city, benefitting from detailed planning consent to erect a stylish 1.5 storey two or three bedroom self-build dwelling

Contact Agent

Cheffins Residential, Cambridge

Location

St. Philips Road

Plot for sale - £325K | Development for Sale