




Plot for sale
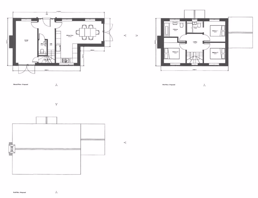
This well positioned, individual building plot has outline planning permission for a single two storey dwelling. Located close to the village green and primary school it offers a convenient and central location in an established corner of the village. Ideal self build opportunity. Viewing on s...
Plot for sale
Description
This well positioned, individual building plot has outline planning permission for a single two storey dwelling. Located close to the village green and primary school it offers a convenient and central location in an established corner of the village. Ideal self build opportunity. Viewing on s...
Contact Agent
Smart Picks — Professionals Relevant to This Land
Based on this property's key features, here are the specialists you may want to consult as part of your due diligence: land agents, rural solicitors and planning consultants.

Land Agents
Essential for navigating the land market, finding buyers, and securing the best price.

Rural Solicitors
Significant investment (£175K+) requires legal expertise for conveyancing, title checks, and transaction security.

Planning Consultants
Planning-sensitive site needs expert guidance for applications and development strategy.
Location
Bernard Road